San Francisco Ballet Building Civic Center

Subject:
Institution - San Francisco Ballet Building
Project Number:
0753
Date:
1979-1982
Client:
San Francisco Ballet Association
Location:
San Francisco, California
Project Name:
San Francisco Ballet Building Civic Center

At the time of its completion in 1983, the San Francisco Ballet Association Building, as noted by Architecture magazine’s managing editor, Allen Freeman, was “without precedent in our country.” The New York Times identified it as “the first building in the United States to be designed and constructed exclusively for the use of a major ballet institution.” The building, designed by Beverly Willis and located within San Francisco’s Civic Center district, would go on to serve as “a model for the design of future American ballet companies and schools.” The building’s design and facilities were so remarkable and ground-breaking that, as one journalist observed, “Dance people don’t merely visit the San Francisco Ballet building: They make pilgrimages to it.”

A cultural fixture and source of pride for the city, the San Francisco Ballet Company was founded in 1933 as the first professional ballet company in the United States and, in 1942, separated from the San Francisco Opera to become its own independent company. The San Francisco Ballet routinely took as its practice studios second-hand locations that could be rented cheaply. The company was formerly housed in a renovated parking garage on 18th Avenue, where the downstairs studios had ceilings so low that the dancers could not practice lifts for fear of hitting the beams. On the East Coast, ballet companies such as the American Ballet Theater owned floors in tall buildings that housed a number of different performing arts groups. The Metropolitan Opera at Lincoln Center in New York, which opened in 1966, provided space on its lower level, below the stage, exclusively for the use of multiple touring companies. Similarly, the Kennedy Center for the Performing Arts in Washington, DC, completed in 1971, provided facilities for touring companies solely on its top floor. In 1983, the San Francisco Ballet Association became “the first American ballet company and school to break this pattern by constructing new quarters for itself.”

The ballet company asked Willis and Associates, Inc. (Willis) to analyze several existing buildings it was thinking about purchasing and renovating. All would have required substantial, costly structural renovation. The decision was made to search for a new building site. One was located at 455 Franklin Street, across from the San Francisco Opera House in the city’s Civic and Performing Arts Center and adjacent to an existing parking garage. A gasoline company, the other by the San Francisco Redevelopment Agency, owned part of the site. With the active help of Diane Feinstein, then mayor of San Francisco, the site was purchased.

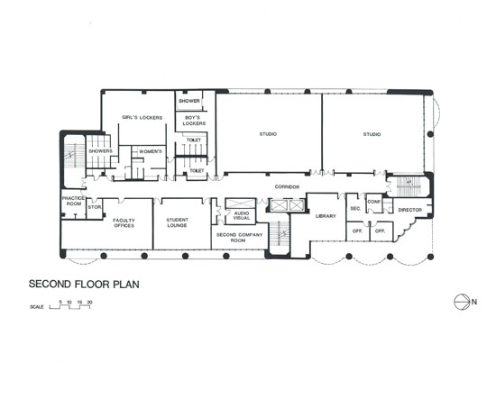
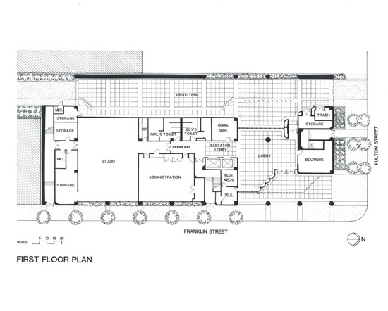
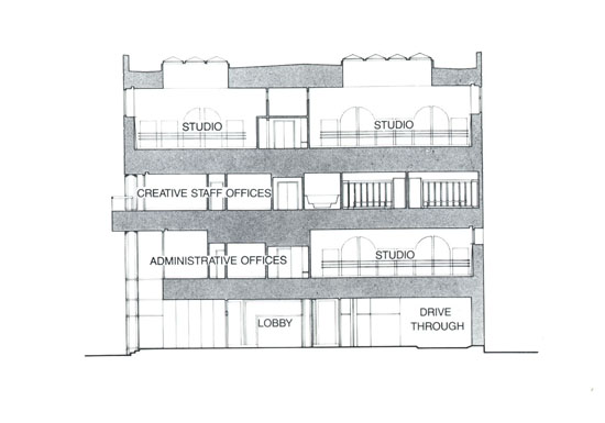
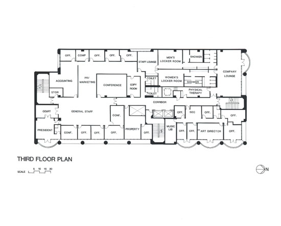
The final building design included facilities to support all of the activities of the company and school with the exception of set storage. The eight rehearsal and classroom studios average 56 by 40 feet in size with 15-foot-high ceilings to accommodate lifts. Additionally, the design provides administrative offices, a library with state-of-the-art audiovisual equipment, and multi-purpose rooms for academic and choreographic study and for hosting conferences. Students and company members enjoy physical therapy and workout rooms with gymnastic equipment, locker rooms with showers, separate lounges, and a computer room. The public is also invited in, to the ballet shop and a ground-floor studio used for community outreach programs.

Due to the split ownership of the building’s site, the design had to be constructed in accordance with input from both the San Francisco Redevelopment Agency and the San Francisco City Planning Department. The planning department developed design criteria for the building that specified an overall height of 96 feet, as well as the height of the cornice line and the color and finishes of exterior materials: all to ensure that the design would share the neo-Renaissance style of the Civic Center.

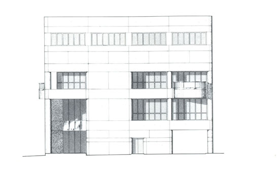
The planned location for the building—facing Franklin Street—was on an elongated rectangular site only one-sixth the size of the adjacent performing arts structures. To contextualize with its surroundings, the ballet building would need to appear massive. This represented a challenge, made more difficult by the fact that the planning department also required a car passage through the building to facilitate the drop-off and pick-up of the schools’ students.

To accomplish this, Willis incorporated elements of the Civic Center’s rectangular geometry and neo-Renaissance vocabulary: the horizontal, tripartite divisions of its base, middle, and top align with those of the adjacent opera house. The building is clad in a concrete material similar in color and texture to the other contemporary area structures. The exterior walls are thickened so that the windows, set deep within the walls, cast strong shadows similar to those of Renaissance buildings.

Seeking to convey the image of ballet, however, Willis took a modernist approach to the design of these elements. During design development, she and associate partner Charles Rueger, who served as project manager, undertook an unprecedented amount of research into the function of a ballet building. They conducted numerous interviews with dancers to understand their needs and record their experiences. The pair also visited facilities maintained by other ballet companies, within the United States and also in Europe: the Juilliard School in New York City, the Royal Ballet in England, the Paris Opera Ballet, and the Stuttgart Ballet in Germany. They retained architect Terry Beaubois to direct the construction drawings. As a result of the team’s analysis, Willis introduced a number of innovations. For example, she designed a detail that tilted the tall mirrors on the walls so that they provide unbroken reflections of the dancers during lifts and jumps. She also incorporated a footbath and a medical facility into the building’s program.

Breaking with the classical tradition of symmetry, the proscenium-style main entrance to the ballet building was located on the corner of the site. Placing the two-story, monumental doorway at the corner accomplished several objectives: it connected the building to an axis of the Civic Center’s master-plan and to the Rose Garden; it gave the building a distinctive identity within the performing arts complex; it allowed the building to be seen from the entrance of the Opera House; and it avoided orienting the main entrance toward the Opera House’s blank rear wall.

Recessed within the two-story Franklin Street entrance, the curvilinear glass wall with its rippling reflections suggests physical movement, as does the swelling curves of its balconies. In the facade, modern and neo-Renaissance styles intertwine, each a part of the other in an endless choreography of point and counterpoint, movement and rest.

The San Francisco Ballet Building has served as a functional prototype—the “mother” building—or new ballet schools nationwide.

Footnotes

  1. Allen Freeman, “City Beautiful Civic Center.” Architecture, December 1988, 82–85. Freeman was the managing editor at Architecture magazine from 1976 to 1989. He was senior editor for Preservation from 1990 to 2002, and Landscape Architecture from 2002 to 2004.
  2. Jennifer Dunning, “San Francisco Ballet Opens New Headquarters,” New York Times, December 17, 1983, arts section cover story.
  3. Steven Hurtt, “Ballet Building Takes the Stage,” Inland Architect, March/April 1989, 59. Hurtt is a professor and former dean of the School of Architecture at the University of Maryland. In addition to Inland Architect, edited by Cynthia Davidson Eisenman, Hurtt has published scholarly essays in the Threshold Journal of the School of Architecture and The Cornell Journal of Architecture, among others.
  4. Christine Temin, “How San Francisco Does Things Right: The Building of a Ballet,” Boston Globe Magazine, May 17, 1987.
  5. https://www.sfballet.org/about/history.
  6. See Craig Palmer, “A Historic First,” Press Release. The San Francisco Ballet, November 1983. Palmer served as director of Marketing and Media Relations for the San Francisco Ballet.
  7. Hurtt, “Ballet Building Takes the Stage,” 59.

  • “The Foundation Builders.” Pink March/April 2008: 113.
  • “Ballet Building Featured in New Book on Architecture.” San Francisco Ballet Backstage February 1998.
  • “Breathtaking Ballet Opener.” Gazette February 1998.
  • Green, Harris “Dancescape.” Dance Magazine February 1998: 12.
  • Davidson, Cynthia Chapin. “Ballet Building Takes the Stage.” Inland Architect March/April 1989: 59-63.
  • “The Ballet’s Four Previous.” San Francisco Ballet Association 19 January 1989.
  • Freeman, Allen. “City Beautiful Civic Center.” Architecture December 1988: 82-85.
  • Barber, Jean. “Spotlight on Beverly Willis, FAIA.” Women in Architecture October 1988.
  • “Living Her Ambition.” Working Woman November 1987.
  • Willis, Beverly. “Design of the San Francisco Ballet Association Building.” Theater Design & Technology Summer 1987: 10. [cover story]
  • Temin, Christine. “The Building of a Ballet.” The Boston Globe Magazine 17 May 1987.
  • Willis, Beverly. “New Settings for Dance.” Update Dance/USA 4 September 1986: 12-13.
  • Beebe, Morton, et al., eds. San Francisco. New York: Harry N. Abrams, Inc., 1985.
  • Armstrong, Leslie and Roger Morgan. Space for Dance. Washington, D.C.: Publishing Center for Cultural Resources, 1984.
  • Holmes, Ann. “Architect Willis in Tune with San Francisco’s Wishes, Needs.” Houston Chronicle 30 September 1984.
  • Asinof, Lynn. “Big Changes in Companies Affect the Arts.” The Wall Street Journal 24 April 1984.
  • Heymont, George. “Model Home: San Francisco Ballet’s Spacious New Headquarters.” Ballet News April 1984.
  • Mantell, Suzanne. “San Francisco Puts its Money Where its Dancers Are.” Vogue April 1984.
  • “Ballet Building an Elegant, No-Nonsense Workspace.” Daily Pacific Builder 30 March 1984.
  • Holmes, Ann. “A New Home for the Houston Ballet, But is it Adequate for Company?” Houston Chronicle 4 February 1984.
  • McBride, Stewart. “The Cinderella of Ballet Companies Gains a Princely Home.” The Christian Science Monitor 15 January 1984.
  • Cariaga, Daniel. “San Francisco Ballet Dances into $13.8 Million Home.” Chicago Sun Times 5 January 1984.
  • Temko, Allan. “Ballet’s Home Sits Out the Dance.” San Francisco Chronicle 3 January 1984.
  • Hertelendy, Paul. “In San Francisco, the Ballet Has Something to Dance About.” Boston Globe 2 January 1984.
  • “Dancers Move to New Ballet Center.” The Democrat 31 December 1983.
  • McBride, Stewart. “San Francisco Ballet, Cinderella of Dance, Sheds Rags for Riches.” The Christian Science Monitor 29 December 1983.
  • Cariaga, Daniel. “Ballet Room Has it All, from Weight Room to Computer Room.” Journal Gazette 25 December 1983.
  • Cariaga, Daniel. “San Francisco Ballet Moves into New Home.” Miami Herald 20 December 1983.
  • Cariaga, Daniel. “SF Ballet Ready to Occupy New Temple of Terpsichore.” Tacoma News Tribune 20 December 1983.
  • Dunning, Jennifer. “San Francisco Ballet Opens New Headquarters.” New York Times 17 December 1983.
  • Esta, A.J. “S.F. Ballet Gets Home of its Own: Patterson & Busch One-Man Shows.” The Hollywood Drama Logue 15 December 1983.
  • Dierks, Donald. “Culture Gleams in the Glow of the Golden Gate.” San Diego Union 11 December 1983.
  • Green, Lois Wagner. “The Willis Way.” California Living 11 December 1983: 38-40.
  • “The Ballet Celebrates…” San Francisco Progress 7 December 1983.
  • Gereben, Janos. “S.F. State’s ‘She Loves Me’; A.C.T.’s ‘A Christmas Carol’.” [No Paper Name], 7 December 1983.
  • “Ballet’s Home Hailed as First.” Los Angeles Daily Review/Burbank Daily Review 6 December 1983.
  • Cariaga, Daniel. “New Home for San Francisco Ballet.” Los Angeles Times 5 December 1983.
  • Steger, Pat. “The Ballet Building Bash.” San Francisco Chronicle 5 December 1983.
  • Bladen, Barbra. “S.F. Ballet Moves into its New Home.” San Mateo Times 4 December 1983.
  • Ulrich, Allan. “Ballet has Other Building to Do.” San Francisco Sunday Examiner & Chronicle 4 December 1983.
  • Commanday, Robert. “Ballet Building Designed With Dancers in Mind.” San Francisco Chronicle 3 December 1983.
  • Hertelendy, Paul. “New S.F. Studios Unique in Ballet.” Mercury News 3 December 1983.
  • “Ballet Up to the Barre, Boys.” San Francisco Progress 2 December 1983.
  • Iwata, Edward. “The S.F. Ballet’s $13.8 Million New Headquarters.” San Francisco Chronicle 2 December 1983.
  • Morris, Gay. “New Quarters.” The Peninsula Times Tribune 2 December 1983.
  • Ross, Janice. “S.F. Ballet Raises Curtain on New Home.” Oakland Tribune 2 December 1983.
  • “Soft Colors, Illusionary Paintings.” Daily Commercial News 2 December 1983.
  • Ulrich, Allan. “The Historic Ballet Party.” San Francisco Examiner 2 December 1983.
  • “San Francisco Opens New House.” Dance Magazine December 1983.
  • Bogdanos, Toula. “Concrete Statement for a Golden Anniversary.” San Francisco Magazine December 1983.
  • Moffat, Frances. “On The Town.” Nob Hill Gazette December 1983.
  • Adams, Gerald. “Uncertain Welcome for New Barre in Civic Center.” San Francisco Examiner 30 November 1983.
  • Ketcham, Diana. “S.F. Ballet Gets its Monument.” Oakland Tribune 27 November 1983.
  • Heymont, George. “Ballet Baron Richard E. LeBIond.” The Executive 8 November 1983.
  • “San Francisco Dancers Find a Home.” Architectural Record November 1983.
  • Palmer, Craig. “An Historic First.” San Francisco Ballet November 1983.
  • Bennetts, Leslie. “New York City in the Performing Arts: Still the Capital, But with a Difference.” New York Times 5 March 1983.
  • “Huge New Condominium Makes Use of Concrete.” Concrete 4 March 1983.
  • Kisselgoff, Anna. “San Francisco Ballet is Thriving at 50.” New York Times 23 January 1983.
  • Woodbridge, Sally B. and John M. Woodbridge. Architecture: San Francisco The Guide. San Francisco: 101 Productions, 1982.
  • Menser, Thomas. “Le Grand Jete.” Architecture California September/October 1982.
  • Starr, Kevin. “Builders of a Monument.” San Francisco Chronicle 19 September 1982.
  • Woodbridge, Sally. “Old and New Buildings House Dance Companies.” Progressive Architecture September 1982.
  • Hilker, Collen. “Home for the San Francisco Ballet.” Scene July/August 1982: 31.
  • “New Ballet Headquarters.” Oakland Post 23 June 1982.
  • Dunning, Jennifer. “San Francisco Ballet Building Arts Center.” New York Times 10 June 1982.
  • Ulrich, Allan. “The Challenge of the Ballet’s New Home.” San Francisco Examiner 31 May 1982.
  • “Lew Christensen.” Los Angeles Times 29 May 1982.
  • UPI. “Work Begins on New Home for S.F. Ballet.” Contra Costa Independent 28 May 1982.
  • UPI. “Work Starts on New Home for S.F. Ballet.” Enterprise [Riverside, CA] 28 May 1982.
  • Larson, Fred. “Ground Set for Ballet’s New Home.” San Francisco Chronicle 27 May 1982.
  • Ulrich, Allan. “Christensen Wields Premiere Shovel for S.F. Ballet’s New Home.” San Francisco Examiner 27 May 1982.
  • UPI. “Ballet Groundbreaking in S.F.” Times-Star [Alameda, CA] 27 May 1982.
  • UPI. “Construction Begins for Ballet.” Journal 27 May 1982.
  • UPI. “Groundbroken in SF for Ballet.” San Diego Evening Tribune 27 May 1982.
  • UPI. “Ballet Getting Home of Own.” Napa Register 25 May 1982.
  • UPI. “SF to Build Home of Its Own.” Berkeley Gazette 25 May 1982.
  • UPI. “Ballet Slates Groundbreaking.” Herald & News [Klamath, OR] 24 May 1982.
  • UPI. “San Francisco Ballet Association.” Republic [Fairfield, CA] 24 May 1982.
  • UPI. “News Briefs: Local.” San Francisco Daily Commercial News 19 May 1982.
  • UPI. “S.F Ballet Building New Home.” Auburn Journal [Auburn, CA] 19 May 1982.
  • “Dance News.” Northwest Arts 14 May 1982.
  • “Amusements” San Francisco Chronicle 10 May 1982.
  • “Bank of America Befriends Ballet.” San Francisco Metro Reporter 10 May 1982.
  • “Ballet Plans $10 Million Headquarters at Civic Center.” Tri-Valley Herald 2 May 1982.
  • Commanday, Robert. “Ballet Builds a Home of its Own.” Review 2 May 1982.
  • “New Home of San Francisco Ballet.” San Francisco Progress 30 April 1982.
  • Commanday, Robert. “S.F. Ballet’s Plans Set For Its New Home.” San Francisco Chronicle 29 April 1982.
  • Ross, Janice. “S.F. Ballet Stepping Up to a Home of its Own.” San Francisco Tribune 29 April 1982.
  • Smith, Karen. “San Francisco Ballet’s New Home to be ‘Best of Its Kind.'” The Peninsula Times Tribune 29 April 1982.
  • Ulrich, Allan. “S.F. Ballet’s Unveils Plans For Its New Home.” San Francisco Examiner 28 April 1982.